01387 257 272
Menu
 
 

The Grange, Islesteps, Dumfries, DG2 8ES

4 bedroom detached house for sale

4
3
2
Offers over £380,000
 
Home | The Grange, Islesteps, Dumfries, DG2 8ES
 

4 bedroom detached house for sale

The Grange, Islesteps, Dumfries, DG2 8ES

Sorry, this listing is no longer available.

Key Features

  • Offers over £380,000
  • Detached
  • 4 Bedrooms
  • EPC: Band E

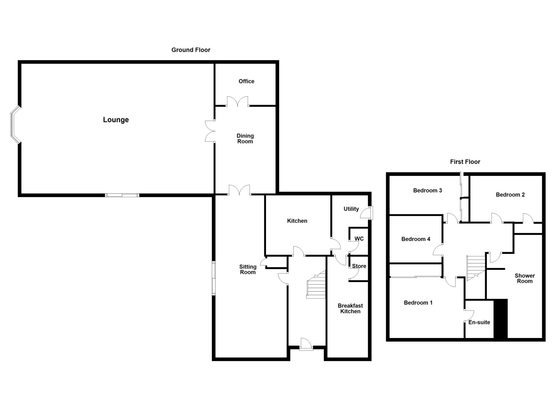
Plans

Description

*PRICE REDUCED* *£10,000 below Home Report value* This four bedroom detached house in the small village of Islesteps has a huge amount of living space and has potential for possibly creating annex accommodation.

Accommodation

*PRICE REDUCED* *£10,000 below Home Report value* This four bedroom detached house in the small village of Islesteps has a huge amount of living space and has potential for possibly creating annex accommodation. This property offers great family accommodation within a lovely rural village setting. Islesteps is around two miles from the town of Dumfries with access to all amenities including shops, supermarkets, schools and leisure centre. The property also is within easy distance of the Solway Coast and Mabie Forest.

Accommodation

Entrance Hall, Sitting Room, Dining Room, Office, Living Room, Kitchen, Utility Room, Kitchen 2, W.C., 4 Bedrooms (1 En Suite), Bathroom. Double Garage. Gardens surrounding.

Entrance Hall

Entered through wooden door with glazed panels and side light. Ceiling light. Shelved storage cupboard with ceiling light and fuse box. Central heating radiator. Coat hooks. Tiled floor.

Sitting Room (3.81m x 9.46m both at widest points or 15’5 x 31″)

Window to the front and side with curtains and vertical blinds. Patio doors to the side. Two decorative ceiling lights. Coving. Television and two telephone points. Fireplace with marble surround. Two central heating radiators with thermostat controls. Built in storage cupboard. Fitted carpet. Through French doors into the Dining Room.

Dining Room (3.46m x 5.14m or 11’3″ x 16’8″)

Window to the side with curtains and vertical blinds. Ceiling spot lights. Coving. Central heating radiator with thermostat controls. Marble fireplace. Fitted carpet. French doors into the Office and Living Room.

Office (3.48m x 2.37m or 11’4″ x 7’7″)

Window to the side with curtains and vertical blinds. Spot lights. Access to loft space. Central heating radiator with thermostat controls. Telephone point. Carpet.

Living Room (7.51m x 11.12m or 24’6″ x 36’4″)

Two windows to the front with vertical blinds. Patio doors to the front with vertical blinds. Bay window to the side with vertical blinds. Ceiling lights. Coving. Two central heating radiators. Electric fire with painted timber mantle and marble hearth. Television point and two telephone points. Fitted carpet.

Kitchen (3.65m x 3.06m or 11’9″ x 10′)

Window to the rear with venetian blinds. Coving. Spot lights. Central heating radiator with thermostat controls. Fitted base and wall units. Oven and gas hob with extractor over., Stainless steel 1 1/2 bowl sink and drainer. Tiled splashback. Space and plumbing for dishwasher. Telephone point. Timber effect flooring.

Back Hall/ Utility Room (2.07m x 1.82m or 6’8″ x 5’9″)

Window to the rear with venetian blinds. Wooden door to the side with glazed panels. Coving. Ceiling light. Fitted base units. Stainless steel sink and drainer. Washing machine. Tumble dryer. Central heating radiator with thermostat controls. Timber effect flooring.

W.C. (1.09m x 1.60m or 3’5″ x 5’27”)

Opaque glazed window to the side with venetian blinds. Ceiling light. Coving. W.C. Wash hand basin. Central heating radiator with thermostat controls.  Timber effect flooring.

Breakfast Kitchen (2.27m x 5.29m both at widest points or 7’5″ x 17’3″)

Floor to ceiling windows to the front with venetian blinds. Coving. Spot lights. Fitted base and wall units. Stainless steel sink and drainer. Eye level oven. Gas hob. Space for fridge freezer. Central heating radiator with thermostat controls. Door into storage cupboard (1.11m x 1.37m or 3’6″ x 4’1″) with window to side, ceiling light, Worcester central heating boiler shelves and storage cupboard.

From the Entrance Hall carpeted staircase to the Landing.

Landing

Two ceiling lights. Coving. Access hatch to loft. Carpet.

Bedroom 1 (3.74m x 3.72m or 12’2″ x 12’2″)

Window to the front with venetian blinds, curtain pole and curtains. Coving. Ceiling light. Central heating radiator with thermostat controls. Built in wardrobe with mirrored doors. Television and two telephone point. Fitted carpet.

En Suite (1.72m x 2.20m or 5’6″ x 7’2″)

Opaque glazed window to the front. Inset ceiling spot lights. Coving. W.C set in fitted unit. Wash hand basin set in fitted vanity unit. Shower enclosure with ‘Mira Events’ shower. Respatex. Extractor fan. Tiled floor.

Bedroom 2 (2.97m x 3.56m or 9’7″ x 11’6″)

Window to the rear with venetian blinds, curtain pole and curtains. Coving. Ceiling light. Central heating radiator with thermostat controls. Built in wardrobe. Fitted carpet.

Bedroom 3 (4.02m x 2.98m or 13’2″ x 9’7″)

Window to the rear with venetian blinds, curtain pole and curtains. Coving. Ceiling light. Central heating radiator with thermostat controls. Two built in wardrobes. Television point. Fitted carpet.

Bedroom 4 (2.77m x 2.74m or 9’1″ x 9’0″)

Window to the side with venetian blinds, curtain pole and curtains. Coving. Ceiling light. Central heating radiator with thermostat controls. Television point. Fitted carpet.

Bathroom (4.90m x 2.52m both at widest points or 16’1″ x 8’2″)

Opaque glazed window to the front. Coving. Inset ceiling spot lights. Jacuzzi bath. Shower enclosure with two stainless steel showers. W.C. Wash hand basin set in fitted vanity unit. Respatex. Central heating radiator with thermostat controls. Tiled floor.

Double Garage (5.44m x 5.34m or 17’8 x 17’5″)

Two up and over doors to the front. Full light and power.

Outside

Tarred driveway to the front with ample parking. Lawn area with patio and a variety of shurbs and plants. Two apple trees are planted in the front garden. Gravel area to the rear.

Notes

This property has an ample supply of power points, full oil central heating and full double glazing. All fixed floor coverings and window dressings are included in the sale. White goods, other electrical items and furniture can be available by separate negotiation. No guarantees are given with any white goods included. The Worcester central heating boiler is in warranty until 2022 and has been recently serviced. The central heating can also be controlled online or by the mobile phone app. Home Report available on www.onesurvey.org. EPC Band E. Council Tax Band G.

Entry

By negotiation.

Viewings 

Please contact Braidwoods Solicitors on (01387) 257272.

Directions 

Entering Islesteps on the A710, turn left at the bus stop and follow the private lane round to the left. The Grange is the third property on the right.

Consumer Protection for Unfair Trading Regulations 2008, Business Protection from Misleading Marketing Regulations 2008

These particulars are believed to be correct but their accuracy is not guaranteed and they do not form part of any contract. All measurements are approximate and are generally taken from the widest points. No item of a mechanical or working nature (e.g. any central heating installation) has been tested by us and accordingly no guarantee is given and any potential purchaser should satisfy himself in that respect. Any photographs are for the purpose only of illustration and must not be interpreted as giving any indication of the extent of the property for sale or of what is included in the sale.

 
 
 
 
 
Mortgage Calculator

 
This does not constitute an offer of credit and is an estimate based on the details you have provided.

This information is computer-generated and relies on certain assumptions. It has only been designed to give a useful general indication of costs based on the mortgage details you input.

It's important you always get a specific quote from the lender and double-check the price yourself before acting on the information. Braidwoods Solicitors & Estate Agents does not act as ether a lender or broker and any example of mortgage costs is not an offer of credit or an indication of likely acceptance by any given lender.

These results are for a repayment mortgage and are only intended as a guide. Your home may be repossessed if you do not keep up repayments on a mortgage.
 

Consumer Protection

Consumer Protection for Unfair Trading Regulations 2008, Business Protection from Misleading Marketing Regulations 2008

More Info

You may also like

 

Here to Help

Please get in touch for further information.

 
This website uses cookies
This site uses cookies to enhance your browsing experience. We use necessary cookies to make sure that our website works. We’d also like to set analytics cookies that help us make improvements by measuring how you use the site. By clicking “Allow All”, you agree to the storing of cookies on your device to enhance site navigation, analyse site usage, and assist in our marketing efforts.
These cookies are required for basic functionalities such as accessing secure areas of the website, remembering previous actions and facilitating the proper display of the website. Necessary cookies are often exempt from requiring user consent as they do not collect personal data and are crucial for the website to perform its core functions.
A “preferences” cookie is used to remember user preferences and settings on a website. These cookies enhance the user experience by allowing the website to remember choices such as language preferences, font size, layout customization, and other similar settings. Preference cookies are not strictly necessary for the basic functioning of the website but contribute to a more personalised and convenient browsing experience for users.
A “statistics” cookie typically refers to cookies that are used to collect anonymous data about how visitors interact with a website. These cookies help website owners understand how users navigate their site, which pages are most frequently visited, how long users spend on each page, and similar metrics. The data collected by statistics cookies is aggregated and anonymized, meaning it does not contain personally identifiable information (PII).
Marketing cookies are used to track user behaviour across websites, allowing advertisers to deliver targeted advertisements based on the user’s interests and preferences. These cookies collect data such as browsing history and interactions with ads to create user profiles. While essential for effective online advertising, obtaining user consent is crucial to comply with privacy regulations.